Echte waterratten waren Sjoerd Jan en Jacoline nog niet toen ze de kans kregen om deze ligplaats te kopen. Maar met zeilen als grootste hobby hadden ze wel de wens om het water vaker te beleven – en waar kan dat nou beter dan in een woonark? Courage Architecten vertaalde hun wens om privacy te combineren met een maximale tuin- en waterbeleving naar een ark die ze past als een tweede huid. Als een zwarte diamant tussen de meer traditionele woonarken valt de haast anonieme verschijning vooral op door haar eenvoud.
Binnen maakt het daglicht – niet alleen vanuit de pui, maar ook vanuit het dak – de balans tussen openheid en volledige privacy spannend: zicht op het water tegenover de intimiteit van de gesloten achterkant. De kozijnen van de raampartijen in de overwegend zwarte woonkamer zijn aan de onderkant verzonken achter de vloer en aan de bovenkant verborgen achter de stalen liggers. Daardoor zijn de kozijnen nauwelijks zichtbaar en lijkt het alsof de gepolijste kiezelbetonvloer doorloopt in het water. En omdat de stalen kolommen van de hoofdconstructie bewust zijn weggelaten in de glazen hoeken van de ark, kijk je zonder belemmering uit naar buiten. Dat maakt het uitzicht op het spiegelende water een belevenis, zowel overdag als ’s nachts.
De ark is gebouwd op een betonnen casco met een opbouw van onderhoudsvrij staal. Voor een warme look-and-feel meandert er overal hout door het ruw afgebouwde interieur. Verder is de ark gasloos en duurzaam: hij telt 38 zonnepanelen en is voorzien van een zuinige warmtepomp. Daarnaast is er ruimte voor batterijen, zodat de ark uiteindelijk ook van het elektriciteitsnet af kan. Die batterijen worden dan in alle vier de hoeken van de ark geplaatst, om te voorkomen dat de ark scheef komt te liggen door het extra gewicht.
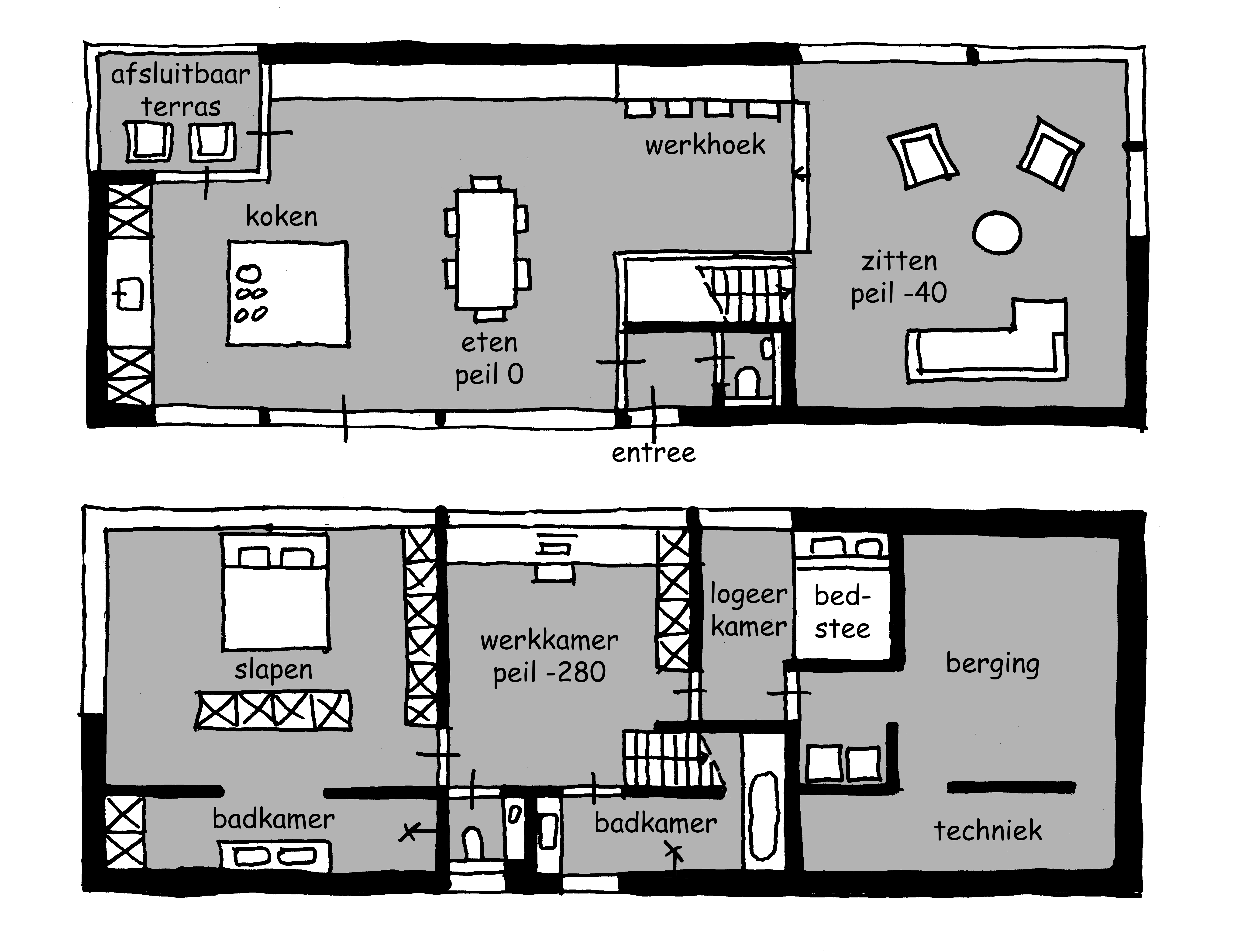
Bekijk hier de plattegrond.

